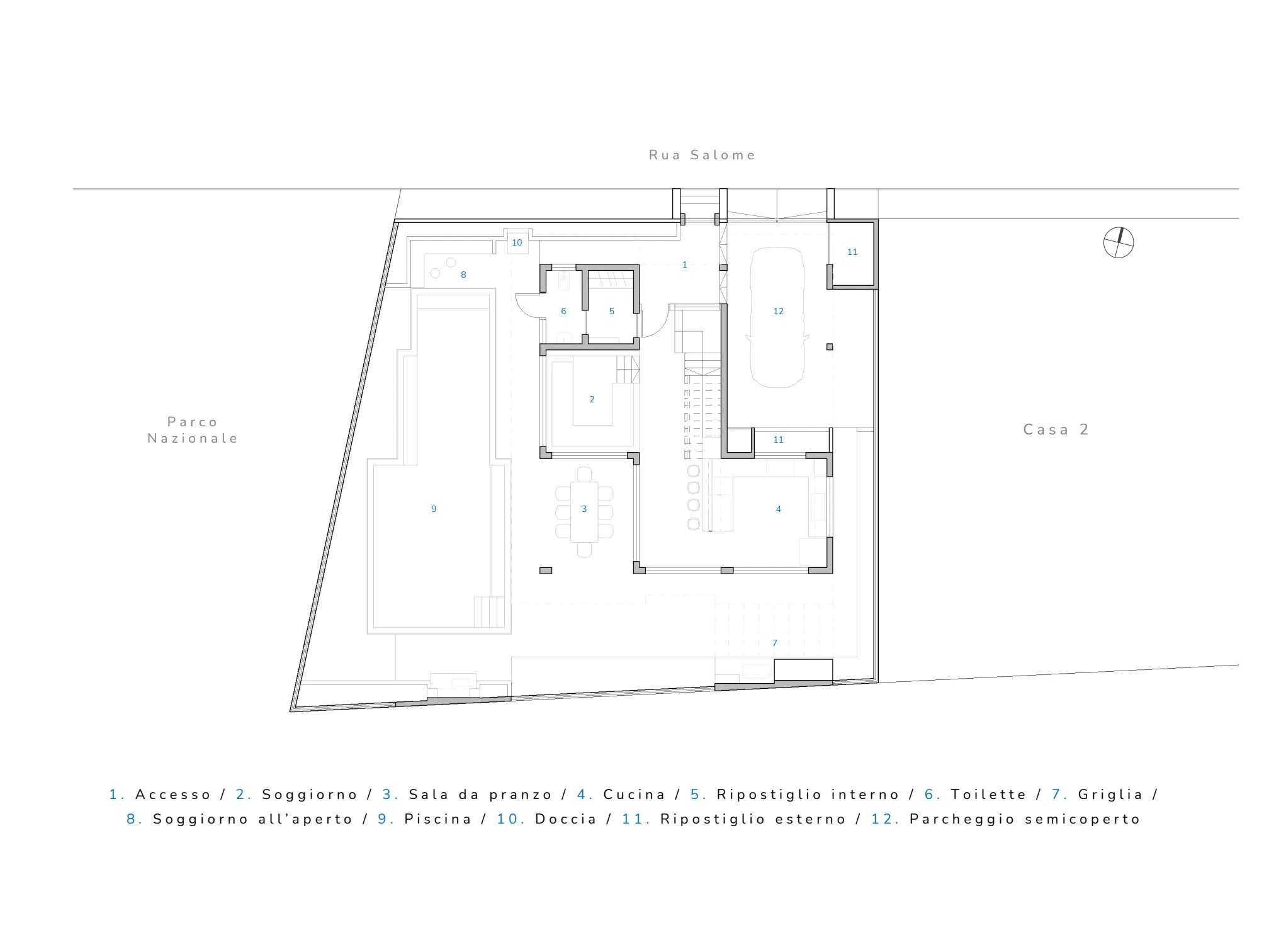
Architettura, natura e relax
Atlântica Preá Design Villas è un complesso residenziale unico composto da quattro ville progettate per catturare l'essenza tropicale di Preá, Ceará, Brasile. Ispirate all'architettura balinese, queste abitazioni offrono il perfetto equilibrio tra funzionalità e calore, ideali per uno stile di vita vacanziero o rilassato in un ambiente vicino al mare, fornendo un rifugio privato dove design, funzionalità e natura si fondono in perfetta armonia.


